Project: Baldwins

Location: Loughton, Essex

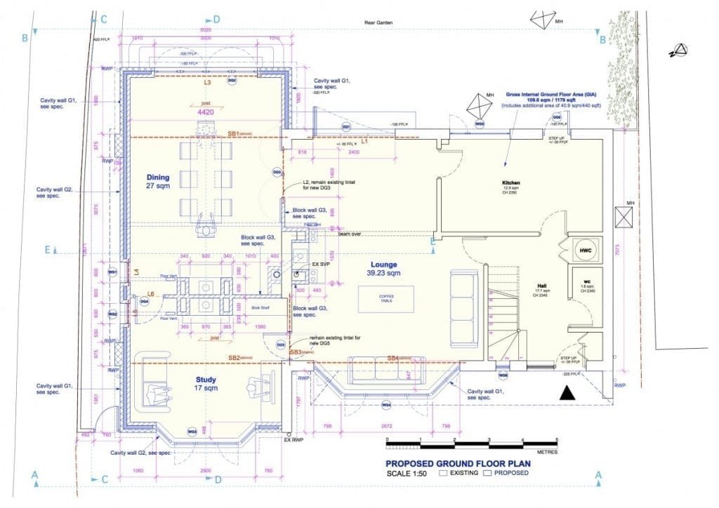
This project is a two storey side extension to a detached 1970’s house with some internal re-modelling. This is an example of high quality traditional design which shows that we are flexible in our approach.

Planning and Building Regulations Approval was obtained.

Kings | Alpha Architects Ltd Residential Project Essex