Skip to content
Est. 2008
Essex Head Office 020 8498 0228
London Office 020 7345 5070
info@nicantony.com
HOME
ABOUT
SERVICES
Residential
Interiors
Developments
Community
PROJECTS
Residential
Interiors
Developments
Community
Concept Designs
REVIEWS
CONTACT US
HOME
ABOUT
SERVICES
Residential
Interiors
Developments
Community
PROJECTS
Residential
Interiors
Developments
Community
Concept Designs
REVIEWS
CONTACT US
Est. 2017
Essex Head Office 020 8498 0228
London Office 020 7345 5070
info@alphaarchitectsltd.co.uk
HOME
ABOUT
SERVICES
Residential
Interiors
Developments
Community
PROJECTS
Residential
Interiors
Developments
Community
Concept Designs
REVIEWS
CONTACT US
HOME
ABOUT
SERVICES
Residential
Interiors
Developments
Community
PROJECTS
Residential
Interiors
Developments
Community
Concept Designs
REVIEWS
CONTACT US
Elmcroft
Home
>
Elmcroft
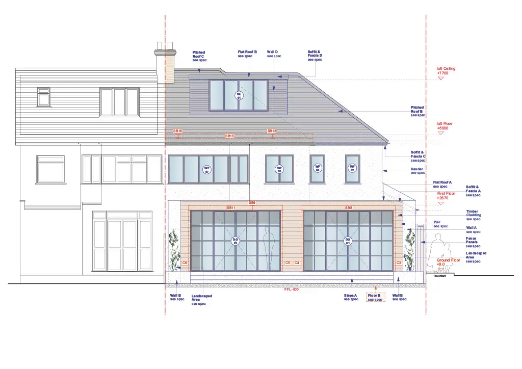
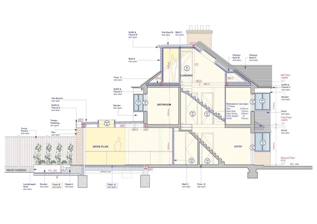
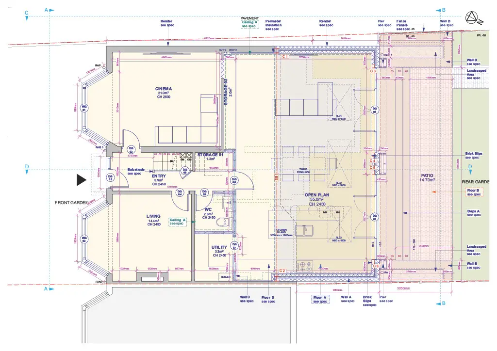
Project: Elmcroft
Location: Woodford
Description:
This is a popular type of project that we work on that shows remodelling and refurbishment of a 1930s semi-detached property.
A contemporary rear extension and loft conversion was added that provides a chic interior whilst being sympathetic to the 1930s character.