Storers
Project: Storers
Location: Isle of Dogs, London
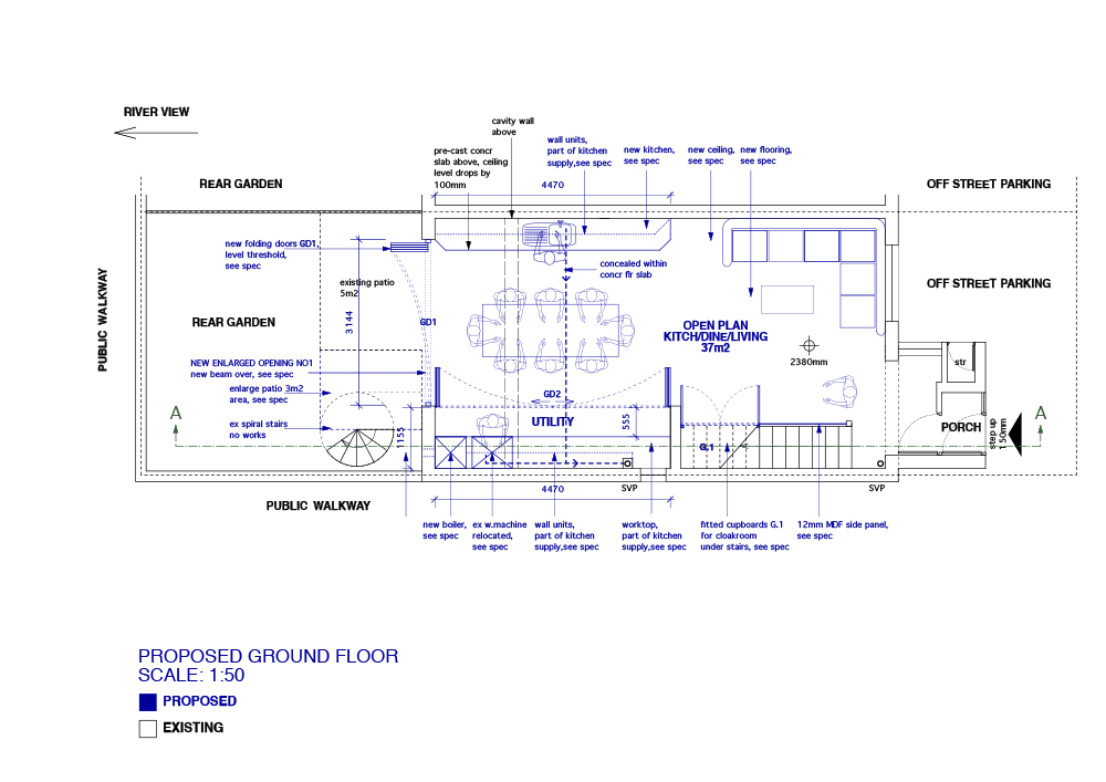
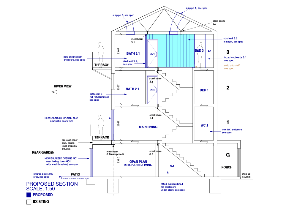
This project incorporated the full internal remodeling and refurbishment of a 4 storey 1980’s built townhouse. The house had a poor and dark internal layout with small room sizes and a small opening to the rear garden which did not maximize it’s riverside location.
The staircase enclosure walls were removed on the ground and first floors to create bright open plan living areas. On the ground floor this provided space for a large contemporary kitchen with a central feature island and hidden utility area. On the first floor this provided an enlarged living area with a rear terrace to maximize the river view and south facing light. A glass staircase was provided between these floors to enhance the ‘drama’ of moving from one level to the other and make them feel connected more like a double height/ 2 storey family and entertainment space. The bedrooms located on the second floor were remodeled and enlarged to provide more storage with fitted cupboards. The staircase enclosure walls were also removed at the top of the stairs and replaced with clear glass walls to add a ‘wow’ factor to the open plan master bedroom which also provided more natural light including an en-suite shower room.










